Immobilienprojekte

Standort: Hohenzollerndamm 11, 10717 Berlin

Leistung: Um- und Anbau (Planung, Genehmigung, Bauleitung, Innenausbau)

Projekttyp: Boardinghouse / Wohn- und Geschäftshaus

BGF: 2.601 m²

Zeitraum: 2010 - 2014

Status: fertiggestellt

Standort: Hohenzollerndamm 28/28a,10713 Berlin
Leistung: Sanierung und Umbau (Planung, Bauleitung, Innenausbau)
Projekttyp: Ärztehaus/Privatklinik
BGF: 900 m²
Zeitraum: 2015 - 2016
Status: fertiggestellt

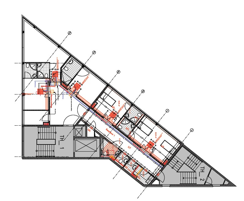
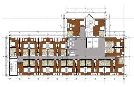
Standort: Am Schlangengraben 16, 13597 Berlin
Leistung: Umbau und Innenausbau (Planung, Entwicklung)
Projekttyp: Hotel
BGF: 3.600 m²
Zeitraum: 2016 - 2017
Status: fertiggestellt

Standort: Heerstrasse / Nennhauser Damm in 13591 Berlin
Leistung: Sanierung (Planung, Erstellung vom Maßnahmenkatalog, Genehmigung)
Projekttyp: 21 denkmalgeschützte Doppelhäuser
Zeitraum: 2013 - 2023
Status: fertiggestellt

Standort: Stubenrauchstraße / Krokusstraße, 12357 Berlin
Leistung: Neubau (Planung, Entwicklung, Genehmigung)
Projekttyp: Mehr- und Einfamilienhäuser
Zeitraum: 2014 - 2020
Status: fertiggestellt

Standort: Heerstrasse 645, 13591 Berlin
Leistung: Neubau (Planung, Entwicklung, Genehmigung)
Projekttyp: Doppel- und Reihenhäuser
BGF:
  400 m²
Zeitraum: ab 2024
Status: in Planung

Standort: Am Golfplatz, 15749 Mittenwalde-Motzen
Leistung: Neubau (Planung, Entwicklung, Genehmigung)
Projekttyp: Geschäfts- und Mehrfamilienhäuser
BGF:
  55.000,00 m2
Zeitraum: ab 2023
Status: in Planung

Standort: Wilmersdorfer Str. 147, 10585 Berlin
Leistung: Um- und Ausbau (Planung, Entwicklung, Genehmigung)
Projekttyp: Gewerbehaus
BGF:
  440 m2
Zeitraum: ab 2024
Status: in Planung